|
Содержание Предыдущий § Следующий
ГЛАВА ПЕРВАЯ
РАЗБОРКА И СБОРКА ЭЛЕКТРИЧЕСКИХ МАШИН 1-1. РАЗБОРКА МАШИН СРЕДНЕЙ МОЩНОСТИ
Основной операцией при разборке является выемка ротора (якоря) из статора (станины). В зависимости от размеров и конструкции машин применяются различные приемы разборки. Для машин малой и средней мощности с подшипниковыми щитами скользящими подшипниками разборка начинается со снятия щитов. В зазор между ротором и статором кладут прессшпановые листы. Перед снятием переднего ' подшипникового щита, несущего щеткодержатели или замыкающее приспособление, должны быть подняты щетки и разъединены все провода между щитом и машиной. Щит подвязывается стропами к крюку крана или тали, и стропы натягиваются. Затем освобождают болты крепления щита к станине. Часть этих болтов ввертывают в специальные отверстия в ободе щита, имеющие резьбу, после чего равномерным поворотом болтов производят отжим щита, стаскивание его с центрирующей заточки статора и удаление с вала.
Для снятия заднего подшипникового щита необходимо снять шкив с вала. Эта операция производится стяжками (рис. 1-1), причем необходимо избегать перекосов. Задний щит удаляют так же, как и передний.
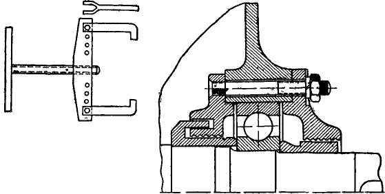
У машин с шариковыми и роликовыми подшипниками для снятия подшипникового щита может потребоваться освобождение подшипника. Наиболее распространенная конструкция подшипникового узла изображена на рис. 1-2. Для снятия щита нужно освободить шпильки, стягивающие фланцы.
1 Передний — оо стороны коллектора, контактных колец; задний со стороны привода (шкива).
Шарикоподшипник и задний фланец остаются на валу, и для снятия подшипника должны быть применены стяжки.
 Сторона привода
Рис. 1-2. Подшипниковый узел с шарикоподшипником.
Рис. 1-1. Стяжки.
Неснятый шарикоподшипник на валу должен быть завернут в промасленную бумагу. В некоторых конструкциях (рис. 1-3) шарикоподшипник находится в специальном капсюле 2, который входит в расточку щита и крепится к щиту при помощи кольца 1, кольцо одним рядом болтов удерживается на щите, а вторым рядом болтов держит капсюль. Для снятия щита при этой конструкции нужно отвернуть болты, крепящие капсюль к кольцу, после чего щит снимается описанными приемами. Стягивание щита должно производиться без перекосов. На валу остается подшипник в капсюле, который защищает его от грязи и механических повреждений. Для снятия капсюля с подшипником с вала в нем высверлены два диаметрально расположенных отверстия, в которые входят наконечники стяжного приспособления.
Конструкции по рис. 1-4 отличаются наличием лабиринтового кольца 1, имеющего такой же наружный диаметр, как шарикоподшипник. Поэтому для снятия щита у этой конструкции нe требуется предварительного освобождения подшипника. У машин на роликовых подшипниках встречаются две.
 Рис. 1-3. Подшипниковый узел с капсюлем
Характерные конструкции подшипниковых узлов. Конструкция по рис. 1-5 имеет с обеих сторон одинаковый тип роликоподшипника с полузакрытыми внутренними кольцами (без упорного кольца).
 Сторона привода
Рис. 1-4 Подшипниковый узел с шарикоподшипником.
Снятие щитов при этой конструкции производится без какой-либо разборки подшипникового узла.
Конструкция по рис. 1-6 имеет закрытое внутреннее кольцо у переднего роликового подшипника со стороны коллектора.
 Рис. 1-5. Подшипниковые узлы на роликоподшипниках
В этом случае должна быть предварительно снята втулка /, после чего можно снять передний щит. При разборке машины на роликовых подшипниках с тяжелым длинным ротором под конец вала должна быть подведена опора для того, чтобы после освобождения заднего щита не получилось наклонного положения вала и чрезмерного давления на передний подшипник. С этой точки зрения наиболее удобна вертикальная разборка.
 Рис. 1-6, Подшипниковые узлы на роликоподшипниках.
При разборке необходимо установить порядок, при котором все освобождающиеся крепежные части, мелкие детали и т. п. складываются в специальные ящики. Все, что может быть ввернуто и поставлено на свое место, для предохранения от поломки и утери должно быть поставлено на место.
После снятия подшипниковых щитов ротор (якорь) может быть выведен из статора (станины). На вал ротора надевают стропы, как показано на рис. 1-7,а, стропы подтягивают краном так, чтобы ротор не терся о статор, и ротор придвигается краном до тех пор-, пока задний строп не подойдет близко к лобовой части обмотки статора (рис. 1-7,6). После этого под ротор кладут лист электрокартона, ротор опускается на сердечник статора и подставку под вал, и если его центр тяжести вышел из статора, то стропы переносят (рис. 1-7,в). Ротор полностью выводится из статора. Если центр тяжести ротора остается все же внутри машины, то для вывода вал удлиняется трубой (рис. 1-7,6) и производится дополнительный вывод ротора из статора.
 Рис. 1-7. Способы выемки ротора из статора.
а, б и в—операции выемки ротора краном с перестановкой; г — выемка краном
в одну операцию; д—выемка краном посредством приспособления; е—выемка
с установкой приспособления на корпус электродвигателя.
Для роторов (якорей) небольшого веса при известном навыке можно пользоваться способом, показанным на рис. 1-7,г. В этом случае ротор находится на весу и удерживается в .нужном положении при помощи трубы, надетой на вал.
Весьма удобной является разборка при вертикальном положении оси ротора, требующая, однако, предварительной перекантовки машины и достаточной высоты подкранового пути. При этом способе разборки после снятия верхнего щита якорь застропливают за подъемное кольцо, ввернутое в вал, крюк крана устанавливают над центром машины так, чтобы ротор легко вращался от руки, и при непрерывном поворачивании его рукой вытаскивают из статора.
Содержание Предыдущий § Следующий
|