Разработка и производство сервоприводов,
бесколлекторных и вентильных двигателей, движитель (трастер) для телеуправляемого необитаемого подводного аппарата (ТНПА, ROV)

Адрес: Москва, ул.Большая Переяславская, д.9+7(985)928-61-99
Литье пластика на заказ
ДОКУМЕНТАЦИЯ

Содержание
Предыдущий § Следующий


3-4. СОЕДИНЕНИЕ ПОЛЮСНЫХ ГРУПП

Выше указывалось, что соединение катушек одной группы во всех случаях может быть только последова~ тельным, причем должно быть соблюдено правильное направление тока во всех катушках одной группы, обеспечивающее совместное их действие.

Параллельное соединение катушек может быть допущено только при условии равенства э. д. с. и совпадения фазы этой э. д. с. у соединяемых катушек. Для катушек же одной группы в описанных выше случаях это не имеет места. Действительно, на рис. 3-1,а—г катушки имеют одинаковое число витков и одинаковые раз-

1                     На рис. 3-1,6 часть катушек имеет укороченный, а часть удлиненный шаг. Удлинение шага действует так же, как укорочение.

2                   При нечетном q не рекомендуется применять обмотки с несплошной фазной зоной.


меры, следовательно, величина э. д. с. в них одинакова. Однако они сдвинуты по отношению к друг другу в магнитном поле на один паз и, следовательно, фаза э. д. с. всех катушек разнится на угол, соответствующий зубцо-вому делению.

На рис. 3-1,6 и в катушки полюсной группы расположены по одной оси, следовательно, фазы э. д. с. в них одинаковы. Однако вследствие разного шага катушек

Рис. 3-2. Параллельное соединение катушечных групп.

величины э. д. с. в них разные. Если ошибочно допустить параллельное соединение указанных катушек, то в них появятся внутренние токи, могущие сжечь обмотку. Таким образом, в пределах полюсной группы катушки должны соединяться последовательно. Сами же полюсные группы катушек, принадлежащие одной фазе, могут соединяться и последовательно и параллельно. На рис. 3-2 показано параллельное включение рассмотренных выше полюсных групп, причем для соблюдения правильной полярности направление тока в соседних группах должно быть обратным. При параллельном соединении должны быть выполнены указанные выше правила равенства э. д. с. по величине и фазе. Это означает, что соединяемые параллельно группы катушек

part3-7.jpg

должны быть совершенно одинаковыми и одинаково расположены по отношению к полюсам. Это требование не всегда может быть выполнено, в особенности в обмотках с дробным числом пазов на полюс и фазу, где катушечные полюсные группы состоят из разного числа

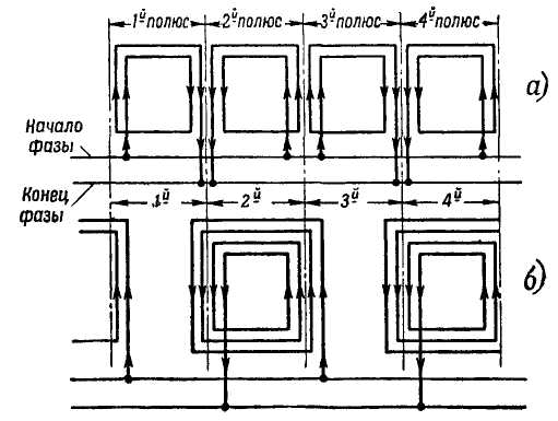
Рис. 3-3. Последовательное соединение катушечных групп.

катушек. Поэтому следует чрезвычайно внимательно подходить к выполнению параллельных соединений в обмотках, в особенности при всякого рода перемотках при ремонте.

Последовательное соединение катушечных групп допустимо во всех случаях (рис. 3-3,а и б).


Содержание
Предыдущий § Следующий

+7(985)928-61-99 Москва, ул.Большая Переяславская, д.9